廣東星藝裝飾集團廣州有限公司,一起尋找好裝修!

星藝裝飾(廣州總部)

您的當前位置:首頁關于我們>公司新聞>149㎡極簡生活,冷艷與治愈糅合交錯,回溯空間藝術的純粹本源

149㎡極簡生活,冷艷與治愈糅合交錯,回溯空間藝術的純粹本源

2022-02-14 12:00:00



主案設計丨侯立原

項目名稱丨暖冬

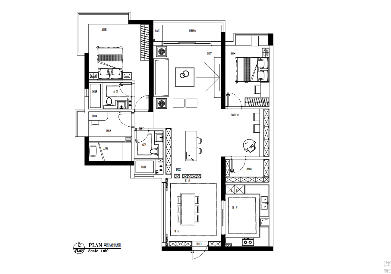
項目面積丨149㎡

風格傾向丨現代簡約

項目地址丨海濱花園


(平面布置圖)


客廳

Living Room




客廳是經典的黑白灰設計,極簡風格盡顯高級大氣,柔軟舒適的絨面深色沙發搭配拼接圓桌,簡約精致又賦予時尚魅力,整體上僅用色彩的沖擊與家具的質感展現設計的精妙。





帶有獨特設計的紅椅像把火點亮了整個空間,小小的點綴卻也是獨具匠心的設計。窗邊的落地暖黃燈光照亮了這大面積深色的環境,似冬日的暖陽給人溫暖,獨自發光發熱。


用餐區

Dining area



餐廳部分清新明亮,大面積的百葉窗與白色儲物柜在視覺上延伸用餐區的空間,黑白相間的桌椅虛實結合,讓整個空間有了沉穩的底色,像是化雪后清晨,迸發勃勃生機。


廚房

Kitchen




廚房與用餐區相連接,白色櫥柜底部做了留空設計,地面的水漬不容易腐蝕櫥柜,并且方便清潔打掃。開闊的移動門就算家中人多也不會擁擠,可以盡情享受工作后相聚的歡樂時光。


隱形門設計

Stealth door design




值得一提的是,整個設計都采用了大量的隱形門設計,利用空間的錯落造成視覺上落差,既不會顯得突兀也豐富了整體的空間層次。


吧臺

Bar





從客廳也能看到整個吧臺的全貌,靠近屏風的位置增添了洗手池,背靠整面的酒水柜子,不管是獨自在家還是友人,家人重聚都能感受到這個家帶來的幸福感。



學習區

Study area




長輩房與收納間門口沒有浪費,設計成孩子自己的學習玩耍區,整排的儲物柜滿足孩子的收納需求,開放的區域也能體驗溫馨的親子時光。


臥室

Bedroom






臥室中的空間感就顯得格外靈動,延申的窗臺能感受每天日出日落。生活需要儀式感,而家的裝修,是我們度過余下幾十年的基礎,在這里,想要感受夏日的清涼還是冬季的暖陽都是極致舒適的體驗。



快速預約裝修

  • 您的稱呼
  • 手機號碼
  • 樓盤名稱
  • 建筑面積
  •  

(c)Copyright 2021 廣東星藝裝飾集團有限公司廣州分公司 版權所有 粵ICP備12080332號 公安部備案號 44010602004978號