廣東星藝裝飾集團廣州有限公司,一起尋找好裝修!

星藝裝飾(廣州總部)

您的當前位置:首頁關于我們>裝修攻略>230㎡中海觀園施工日志丨多年經驗的監理告訴我,水電布線不能忽視這3點基礎工序

230㎡中海觀園施工日志丨多年經驗的監理告訴我,水電布線不能忽視這3點基礎工序

2019-09-24 11:25:22


中海國際觀園 


效果圖


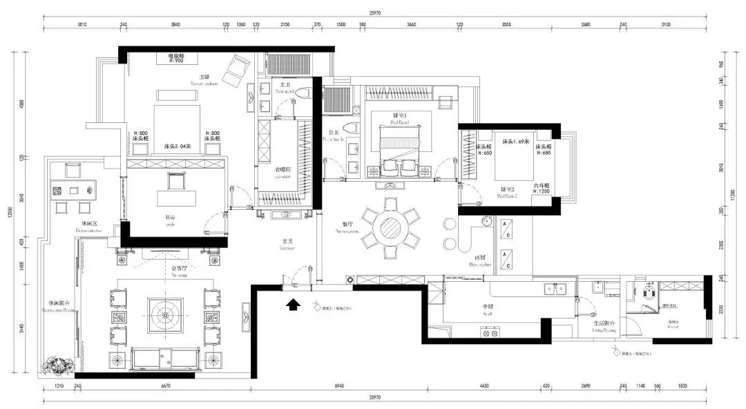
Δ 平面布置圖

項目面積 | 項目戶型 | 項目類型

230㎡ , 5室2廳3衛 , 舊房翻新


服務類型 | 施工造價  | 施工階段

跟蹤服務 , 30萬整 , 水電施工


設計負責 | 施工負責

星藝高級設計師 魏己成 , 星藝裝飾項目經理 劉建軍






Construction Site

 施 工 現 場 


10:00am到達中海國際觀園的工地現場,星藝師傅們正在進行著水電開槽的前期工作。開工前,陽臺采用安全網措施、窗戶玻璃均使用窗膜保護。


嚴格按照施工圖紙施工,結合現場及業主的需求、生活習慣進行水電定位。以及家居方案確定每個開關位置,例如網線、電視機線插座,中央空調系統、地暖系統等現場控制好。

??負責這次施工的項目經理劉建軍 劉工給我們簡單地介紹了現場情況與設計圖紙的方案后,還被小編我“追問”了一番。于是,劉工透露了一點關于水電開槽前的“小秘密”

三個要點簡要闡述:



原墻體的垂直度和平整度相差較大,憑直覺,全靠師傅手藝高低,很難控制墻面整體的平整。因此在水電施工前,要讓墻體灰層達到基本一致必須先用水平儀找出墻面的水平位置,并把水平條安裝固定,星藝裝飾采用PVC材質的墻面水平條(又稱“墻鏡”控制墻面的平整度,每個墻體立面用兩根平行的專用水平條,把墻面分成三等分,以墻體的最高點為基點彈線定位,按彈出的線用切割機切開,深度為15MM寬度為5MM。

清洗好槽內的灰跡,再按槽的長度掛好通線,用水泥漿或膩子把切開的縫隙填滿,再把水平條嵌入進去調平使兩根水平條在同一水平面上。墻鏡工程驗收時,我們是用一把兩米長的靠尺,中間的縫隙塞一張100元的人民幣都不會掉下去的哦,可謂是精益求精


水電階段第一項工作就是開槽,而開槽深度就應該是充滿“不爭不搶”的佛系氣質。先按照圖紙先彈線保持開槽的規整度,管路開槽必須按依照天線位置進行切割,走向保持橫平豎直;

槽的深度需要控制在4厘米,且開槽深度線管應該低于墻面0.5公分,槽子開得過深則會破壞墻面結構,開得過淺管子無法埋入槽內。具體尺寸可以按照管子直徑1.5倍來計算,這樣保留一定后期填槽厚度,防止墻面出現空鼓的情況。

預埋底盒時,應先對墻體用水進行沖洗,保證底盒與原墻之間的粘接牢固,同時采用水平尺進行施工,保持每個開關插座的水平,再用水泥鋪上去。

線管采用排卡固定,在施工前先進行彈水平垂直線,這樣能很好地確保每根線管的橫平豎直,后續水電圖的精準度,同時可以很好避免其他工種施工時對線路進行傷害。

整整齊齊地擺放著星藝裝飾專用的材料,材料上印有“星藝裝飾專供”標記。劉工告訴我們,這些材料在市場上是買不到的,市面上一般水管的管壁厚度是3.5mm左右,而星藝裝飾專用的水管管壁厚度達到4.2mm,抗壓能力十分強,耐用50年。



快速預約裝修

  • 您的稱呼
  • 手機號碼
  • 樓盤名稱
  • 建筑面積
  •  

(c)Copyright 2021 廣東星藝裝飾集團有限公司廣州分公司 版權所有 粵ICP備12080332號 公安部備案號 44010602004978號