方案展示
設計說明
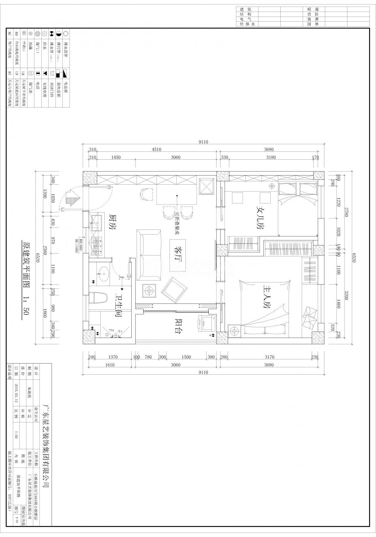
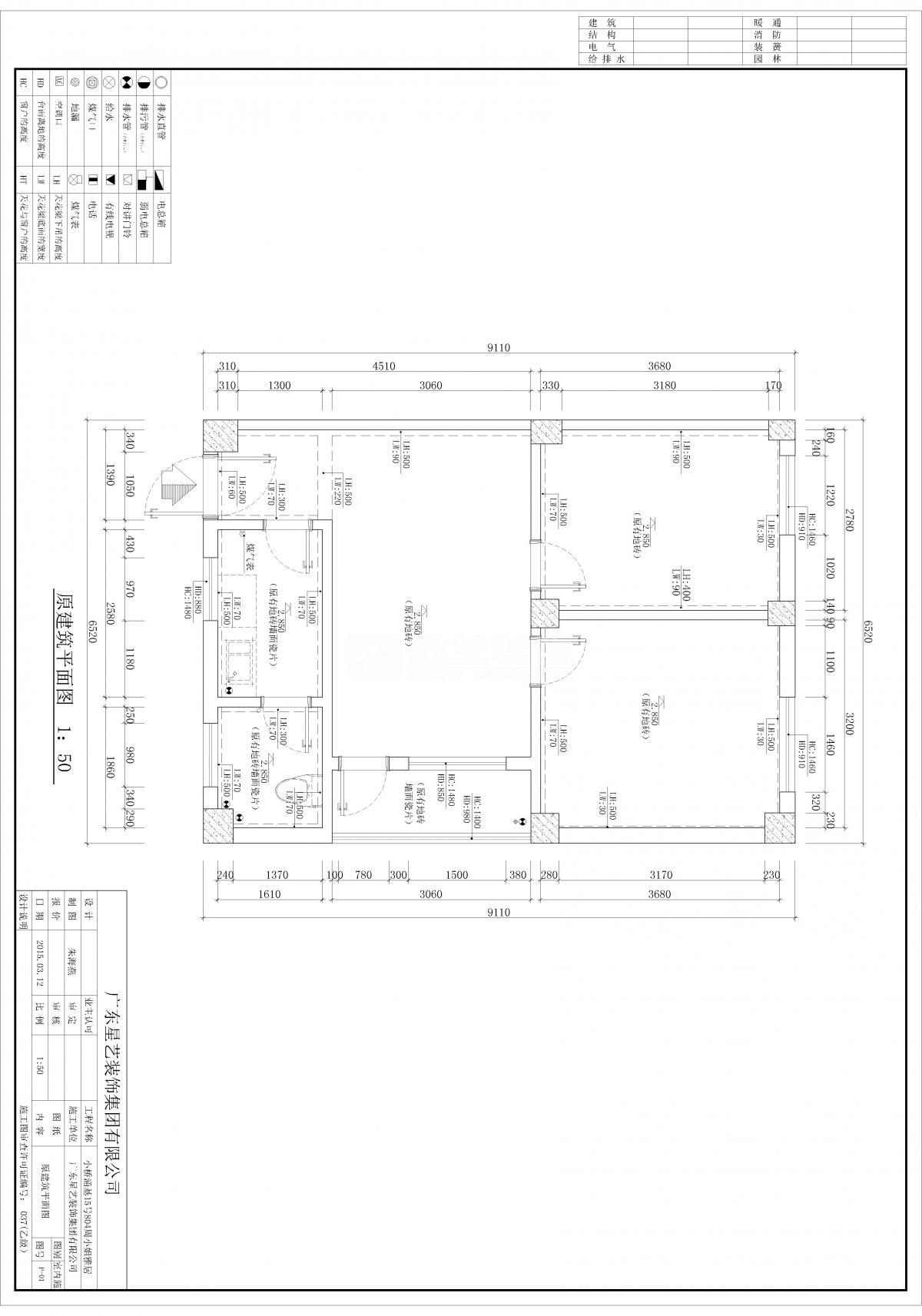
本案是業主村里集資建的老房子,年限比較老,戶型也小,客廳連放電視機的地方都沒有。設計上把兩個房間的門對調一下,衣柜鑲在兩個房間之前的墻體中,可以很巧妙地生出電視背景墻,房間的格局也能很好地利用
[展開]-
星藝設計師的其它設計案例
-
現代風格的其它設計案例
關注我們
分享到
微信

立即預約
在線咨詢
在線客服
公安部備案號 44010602004978號