廣東星藝裝飾集團廣州有限公司,一起尋找好裝修!

星藝裝飾(廣州總部)

您的當前位置:首頁>裝修案例>天河北路595號

分享到 微信

天河北路595號
天河北路595號
天河北路595號
天河北路595號
天河北路595號
天河北路595號
天河北路595號
天河北路595號

方案展示

天河北路595號
天河北路595號
天河北路595號
天河北路595號

設計師:陳可可

設計經驗:8年

上傳作品:20套

天河北路595號

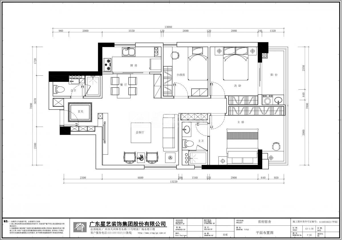
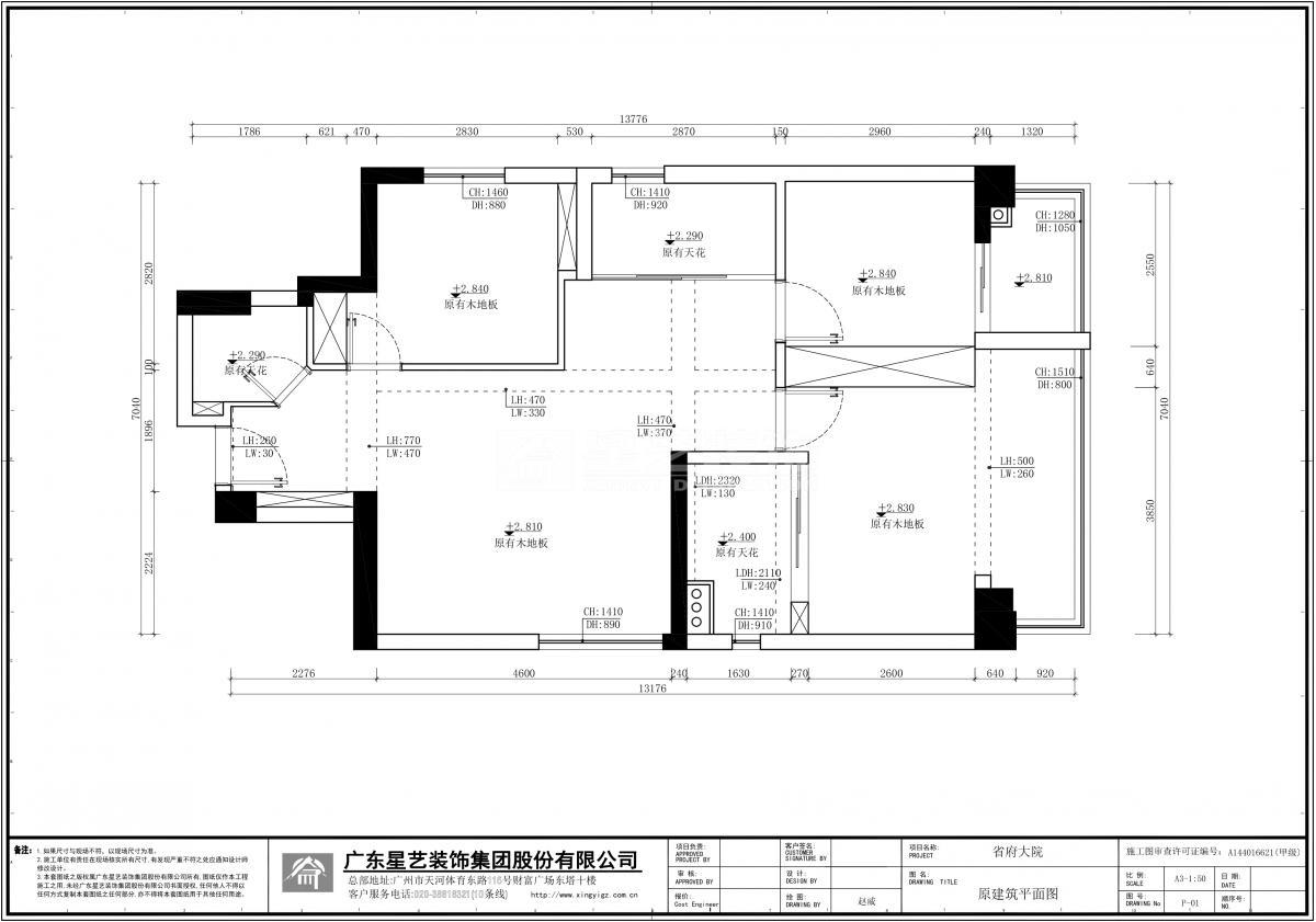
樓盤:省政府機關宿舍

戶型:兩室兩廳

面積:100 m2

設計風格:現代風格

工程造價:15萬

設計說明

為了孩子讀書,客戶把家搬到公司的附近,因為地段和資金有限,所買的房子面積和朝向均不滿意,格局上公共空間與私人空間關系凌亂,難以決擇出入陽臺的房間給誰住,收納遠遠不夠,考慮到生活中的使用方便,建議客戶保留兩個洗手間,然后將廚房與臥室調換,帶陽臺的房間給長輩住,畢竟平時都是長輩在家收拾用得多。每一個房間都盡可能配足夠居住者使用的收納柜子,再將過道都利用起來,沒有過多裝飾,但對流,合理,關系親密,溫馨整潔。

[展開]

裝修預約

  • 您的姓名: *
  • 聯系方式: *
  • 樓盤名稱:
  • 建筑面積: m2
  • 裝修設想:
  • 取消

快速預約裝修

  • 您的稱呼
  • 手機號碼
  • 樓盤名稱
  • 建筑面積
  •  

(c)Copyright 2021 廣東星藝裝飾集團有限公司廣州分公司 版權所有 粵ICP備12080332號 公安部備案號 44010602004978號