廣東星藝裝飾集團廣州有限公司,一起尋找好裝修!

星藝裝飾(廣州總部)

您的當前位置:首頁>裝修案例>華南理工南秀村李先生

分享到 微信

華南理工南秀村李先生
華南理工南秀村李先生
華南理工南秀村李先生
華南理工南秀村李先生
華南理工南秀村李先生
華南理工南秀村李先生
3D全景
華南理工南秀村李先生
華南理工南秀村李先生
華南理工南秀村李先生
華南理工南秀村李先生
華南理工南秀村李先生
華南理工南秀村李先生

方案展示

華南理工南秀村李先生
華南理工南秀村李先生
華南理工南秀村李先生
華南理工南秀村李先生
華南理工南秀村李先生
華南理工南秀村李先生

設計師:星藝設計師

設計經驗:11年

上傳作品:1111套

華南理工南秀村李先生

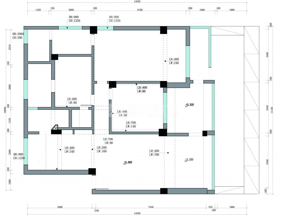
樓盤:華南理工大學

戶型:四室兩廳

面積:160 m2

設計風格:簡約風格

工程造價:23萬

設計說明

原建布置分析:本案四房,其中有一房一衛沒有窗戶,通風采光非常不合理。另外還有兩個房間為了采光問題,彼此之間用窗戶做間隔,導致私密性不高。 方案優化:保留四房結構,將房型動線重新劃分使生活更方便,每個空間都有獨立采光通風和私密性,互不干擾。 設計理念:由于業主夫妻是從事教育工作,本案想為其打造一個寧靜的意境。所以會采用灰色啞光地磚及原木色的家私作為主調來營造大自然的氣氛。

[展開]

裝修預約

  • 您的姓名: *
  • 聯系方式: *
  • 樓盤名稱:
  • 建筑面積: m2
  • 裝修設想:
  • 取消

快速預約裝修

  • 您的稱呼
  • 手機號碼
  • 樓盤名稱
  • 建筑面積
  •  

(c)Copyright 2021 廣東星藝裝飾集團有限公司廣州分公司 版權所有 粵ICP備12080332號 公安部備案號 44010602004978號