廣東星藝裝飾集團廣州有限公司,一起尋找好裝修!

星藝裝飾(廣州總部)

您的當前位置:首頁>裝修案例>天平花苑

分享到 微信

天平花苑
天平花苑
天平花苑
天平花苑
天平花苑
天平花苑

方案展示

天平花苑
天平花苑
天平花苑

設計師:星藝設計師

設計經驗:11年

上傳作品:1111套

天平花苑

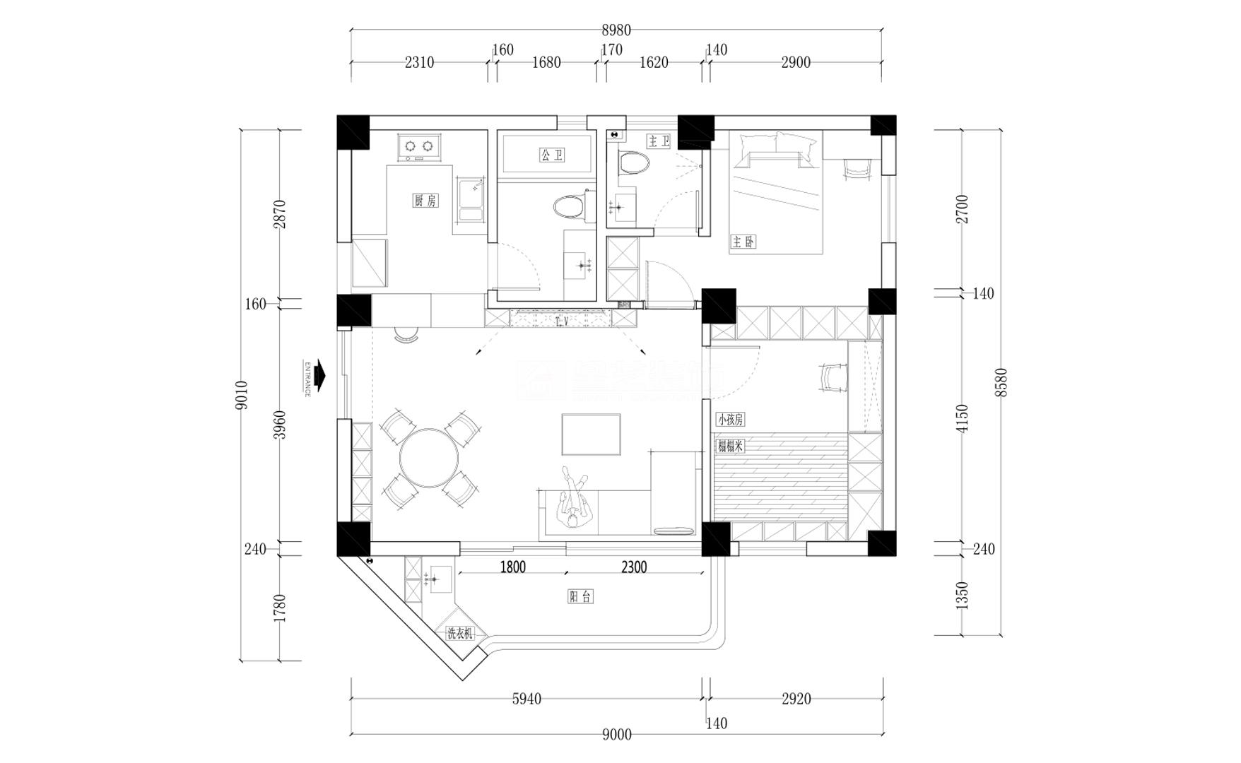
樓盤:天平花苑

戶型:兩室兩廳

面積:80 m2

設計風格:北歐風格

工程造價:9萬

設計說明

裝修預約

  • 您的姓名: *
  • 聯系方式: *
  • 樓盤名稱:
  • 建筑面積: m2
  • 裝修設想:
  • 取消

快速預約裝修

  • 您的稱呼
  • 手機號碼
  • 樓盤名稱
  • 建筑面積
  •  

(c)Copyright 2021 廣東星藝裝飾集團有限公司廣州分公司 版權所有 粵ICP備12080332號 公安部備案號 44010602004978號