廣東星藝裝飾集團廣州有限公司,一起尋找好裝修!

星藝裝飾(廣州總部)

您的當前位置:首頁>裝修案例>萬科城馬宅

分享到 微信

萬科城馬宅
萬科城馬宅
萬科城馬宅
萬科城馬宅
萬科城馬宅
萬科城馬宅
萬科城馬宅
萬科城馬宅
萬科城馬宅
萬科城馬宅
萬科城馬宅
萬科城馬宅
萬科城馬宅
萬科城馬宅
萬科城馬宅
萬科城馬宅
萬科城馬宅
萬科城馬宅

方案展示

萬科城馬宅
萬科城馬宅
萬科城馬宅
萬科城馬宅
萬科城馬宅
萬科城馬宅
萬科城馬宅
萬科城馬宅
萬科城馬宅

設計師:星藝設計師

設計經驗:11年

上傳作品:1111套

萬科城馬宅

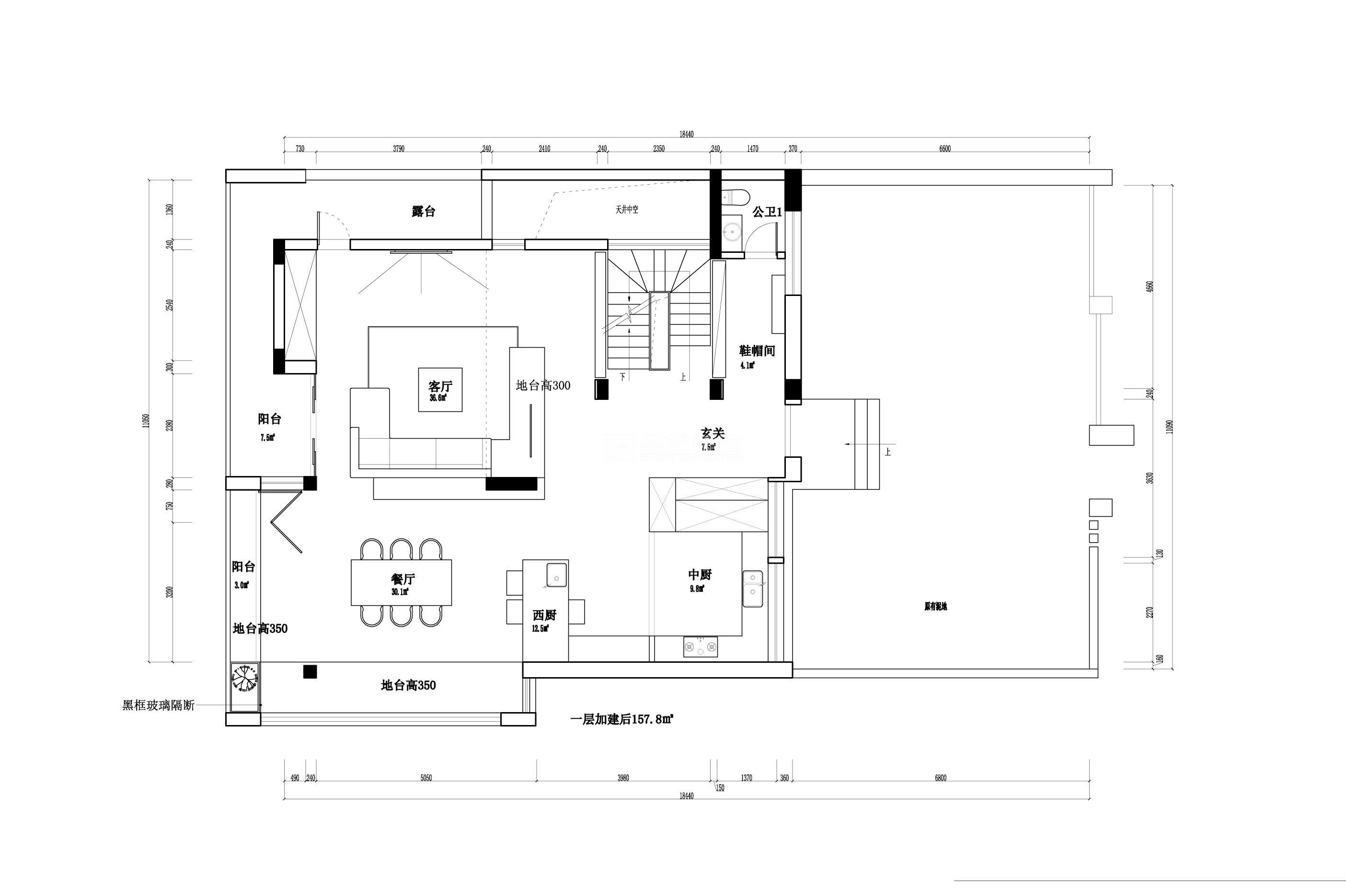
樓盤:萬科城

戶型:別墅

面積:400 m2

設計風格:現代風格

工程造價:

設計說明

本案以“璞”為主題,從中國古代文人理想的園林環境中獲得靈感,在建筑的外部增加格柵做成的回廊,靠窗設置平臺,模糊室內外界限,給居住者創造與自然親密接觸的生活場景。去除多余裝飾,探索用現代化的元素實現悅情自然,注重內在精神世界的居住環境。

[展開]

裝修預約

  • 您的姓名: *
  • 聯系方式: *
  • 樓盤名稱:
  • 建筑面積: m2
  • 裝修設想:
  • 取消

快速預約裝修

  • 您的稱呼
  • 手機號碼
  • 樓盤名稱
  • 建筑面積
  •  

(c)Copyright 2021 廣東星藝裝飾集團有限公司廣州分公司 版權所有 粵ICP備12080332號 公安部備案號 44010602004978號