廣東星藝裝飾集團廣州有限公司,一起尋找好裝修!

星藝裝飾(廣州總部)

您的當前位置:首頁>裝修案例>逸藍華庭逸藍二街A棟2806號

分享到 微信

逸藍華庭逸藍二街A棟2806號
逸藍華庭逸藍二街A棟2806號
逸藍華庭逸藍二街A棟2806號
逸藍華庭逸藍二街A棟2806號
逸藍華庭逸藍二街A棟2806號
逸藍華庭逸藍二街A棟2806號
逸藍華庭逸藍二街A棟2806號
逸藍華庭逸藍二街A棟2806號
逸藍華庭逸藍二街A棟2806號
逸藍華庭逸藍二街A棟2806號
逸藍華庭逸藍二街A棟2806號
逸藍華庭逸藍二街A棟2806號

方案展示

逸藍華庭逸藍二街A棟2806號
逸藍華庭逸藍二街A棟2806號
逸藍華庭逸藍二街A棟2806號
逸藍華庭逸藍二街A棟2806號
逸藍華庭逸藍二街A棟2806號
逸藍華庭逸藍二街A棟2806號

設計師:星藝設計師

設計經驗:11年

上傳作品:1111套

逸藍華庭逸藍二街A棟2806號

樓盤:逸藍華庭

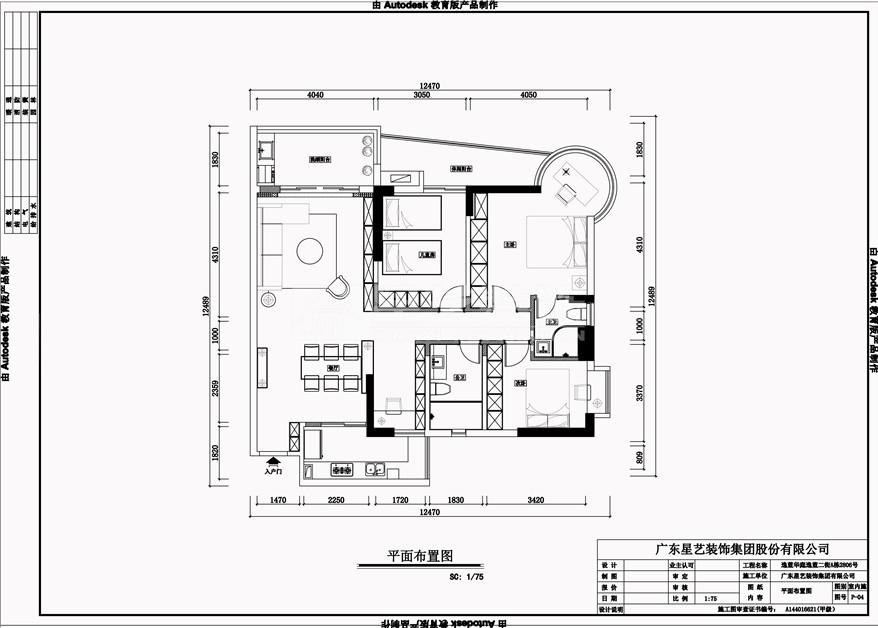
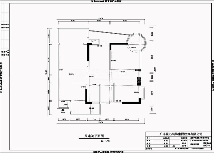
戶型:三室兩廳

面積:140 m2

設計風格:現代風格

工程造價:

設計說明

現代風格以簡潔,大塊面,結構美等元素,本案借鑒了近年比較流行水泥灰,色調以黑白灰為主,添了一些淺原木色,空間結構上天花梁和承重墻之間進行了穿插與延伸,電視柜整體化的設計,電視與柜體融于一體,餐廳與書房之間的矮柜讓人感覺是墻的延伸柜,既可以隔斷空間又使得空間之間有聯系,使得空間統一富有變化。 燈光上以筒燈,燈帶為主,天花以暗藏筒燈為主,燈帶,客廳燈帶與餐廳燈帶的延續與斷開,會讓空間在整體與細節有關聯有脫離,空間的燈帶使得立面與天花的斷離與連接更加富有細節感。

[展開]

裝修預約

  • 您的姓名: *
  • 聯系方式: *
  • 樓盤名稱:
  • 建筑面積: m2
  • 裝修設想:
  • 取消

快速預約裝修

  • 您的稱呼
  • 手機號碼
  • 樓盤名稱
  • 建筑面積
  •  

(c)Copyright 2021 廣東星藝裝飾集團有限公司廣州分公司 版權所有 粵ICP備12080332號 公安部備案號 44010602004978號