廣東星藝裝飾集團廣州有限公司,一起尋找好裝修!

星藝裝飾(廣州總部)

您的當前位置:首頁>裝修案例>先烈中路81號大院70棟904室

分享到 微信

先烈中路81號大院70棟904室
先烈中路81號大院70棟904室
先烈中路81號大院70棟904室
先烈中路81號大院70棟904室
先烈中路81號大院70棟904室
先烈中路81號大院70棟904室
先烈中路81號大院70棟904室
先烈中路81號大院70棟904室
先烈中路81號大院70棟904室
先烈中路81號大院70棟904室
先烈中路81號大院70棟904室
先烈中路81號大院70棟904室
先烈中路81號大院70棟904室
先烈中路81號大院70棟904室
先烈中路81號大院70棟904室
先烈中路81號大院70棟904室

方案展示

先烈中路81號大院70棟904室
先烈中路81號大院70棟904室
先烈中路81號大院70棟904室
先烈中路81號大院70棟904室
先烈中路81號大院70棟904室
先烈中路81號大院70棟904室
先烈中路81號大院70棟904室
先烈中路81號大院70棟904室

設計師:星藝設計師

設計經驗:11年

上傳作品:1111套

先烈中路81號大院70棟904室

樓盤:先烈中路

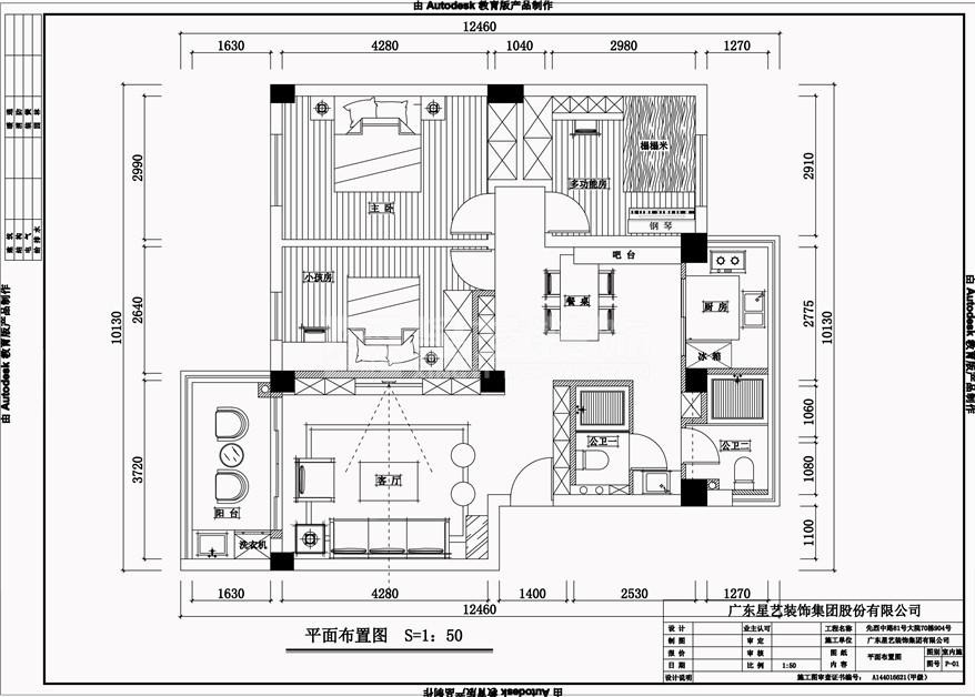
戶型:兩室兩廳

面積:100 m2

設計風格:現代風格

工程造價:

設計說明

本案空間簡潔,色調以暖色調為主,業主需保留原有的木地板,原有木地板是偏深紅色,在搭配設計時,用灰色木地板上墻,整體空間效果調和下,家居都是以現代為主,使得整個空間多一絲時尚感。色調上以淺色為主:白色、灰色,木等。而材質方面以自然的元素,如木??柔軟質樸的紗麻布制品等。

[展開]

裝修預約

  • 您的姓名: *
  • 聯系方式: *
  • 樓盤名稱:
  • 建筑面積: m2
  • 裝修設想:
  • 取消

快速預約裝修

  • 您的稱呼
  • 手機號碼
  • 樓盤名稱
  • 建筑面積
  •  

(c)Copyright 2021 廣東星藝裝飾集團有限公司廣州分公司 版權所有 粵ICP備12080332號 公安部備案號 44010602004978號