廣東星藝裝飾集團廣州有限公司,一起尋找好裝修!

星藝裝飾(廣州總部)

您的當前位置:首頁>裝修案例>帝景大廈

分享到 微信

帝景大廈
帝景大廈
帝景大廈
帝景大廈
帝景大廈
帝景大廈
帝景大廈
帝景大廈
帝景大廈
帝景大廈
帝景大廈
帝景大廈
帝景大廈
帝景大廈
帝景大廈
帝景大廈

方案展示

帝景大廈
帝景大廈
帝景大廈
帝景大廈
帝景大廈
帝景大廈
帝景大廈
帝景大廈

設計師:星藝設計師

設計經驗:11年

上傳作品:1111套

帝景大廈

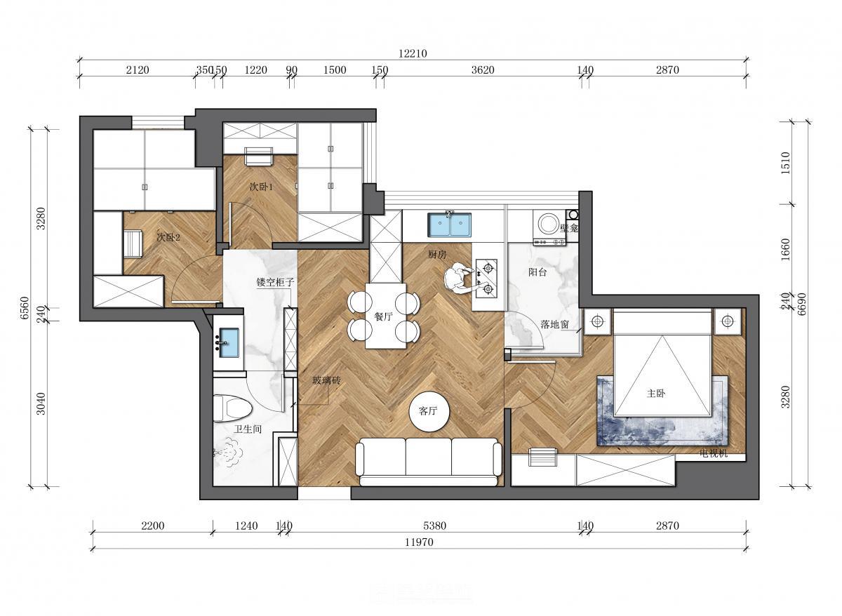
樓盤:帝景大廈

戶型:三室一廳

面積:80 m2

設計風格:簡約風格

工程造價:20萬

設計說明

業主一家4口,要求所有房間誰都要有采光,主臥借助陽臺的光照進來,開放式廚房和陽臺緊挨,我們用玻璃隔斷阻礙油煙的味道。衛生間做了干濕分區,洗手臺外置,這樣一家人洗漱也不會擁擠。洗手臺前面坐了玻璃磚這樣光線就可以透過來,不會是一個暗的空間??筒蛷d整體一個空間,客廳是不需要電視,寫作業可以在餐桌,父母坐在沙發上也是可以看到孩子的行動,安全和全家活動氛圍拉升。

[展開]

裝修預約

  • 您的姓名: *
  • 聯系方式: *
  • 樓盤名稱:
  • 建筑面積: m2
  • 裝修設想:
  • 取消

快速預約裝修

  • 您的稱呼
  • 手機號碼
  • 樓盤名稱
  • 建筑面積
  •  

(c)Copyright 2021 廣東星藝裝飾集團有限公司廣州分公司 版權所有 粵ICP備12080332號 公安部備案號 44010602004978號