廣東星藝裝飾集團廣州有限公司,一起尋找好裝修!
您的當前位置:首頁>裝修案例>珠江嘉園
分享到 微信
設計經驗:11年
上傳作品:1111套
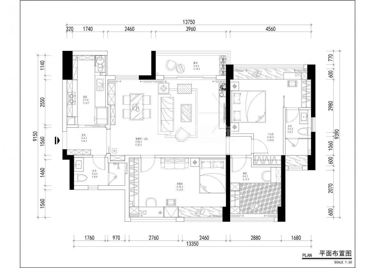
樓盤:珠江嘉園
戶型:四室兩廳
面積:150 m2
設計風格:輕奢風格
工程造價:22萬
麥哥麥姐在單位上班,廣東本地人,熱愛生活,在意居家風水,之前找了多家公司,方案都不滿意,經客戶介紹認識的我,開啟了為期半年的愉快裝修旅程
售前咨詢
裝修熱線
預約量房
回到頂部
24小時全國服務熱線
(c)Copyright 2021 廣東星藝裝飾集團有限公司廣州分公司 版權所有 粵ICP備12080332號 公安部備案號 44010602004978號