方案展示
設計說明
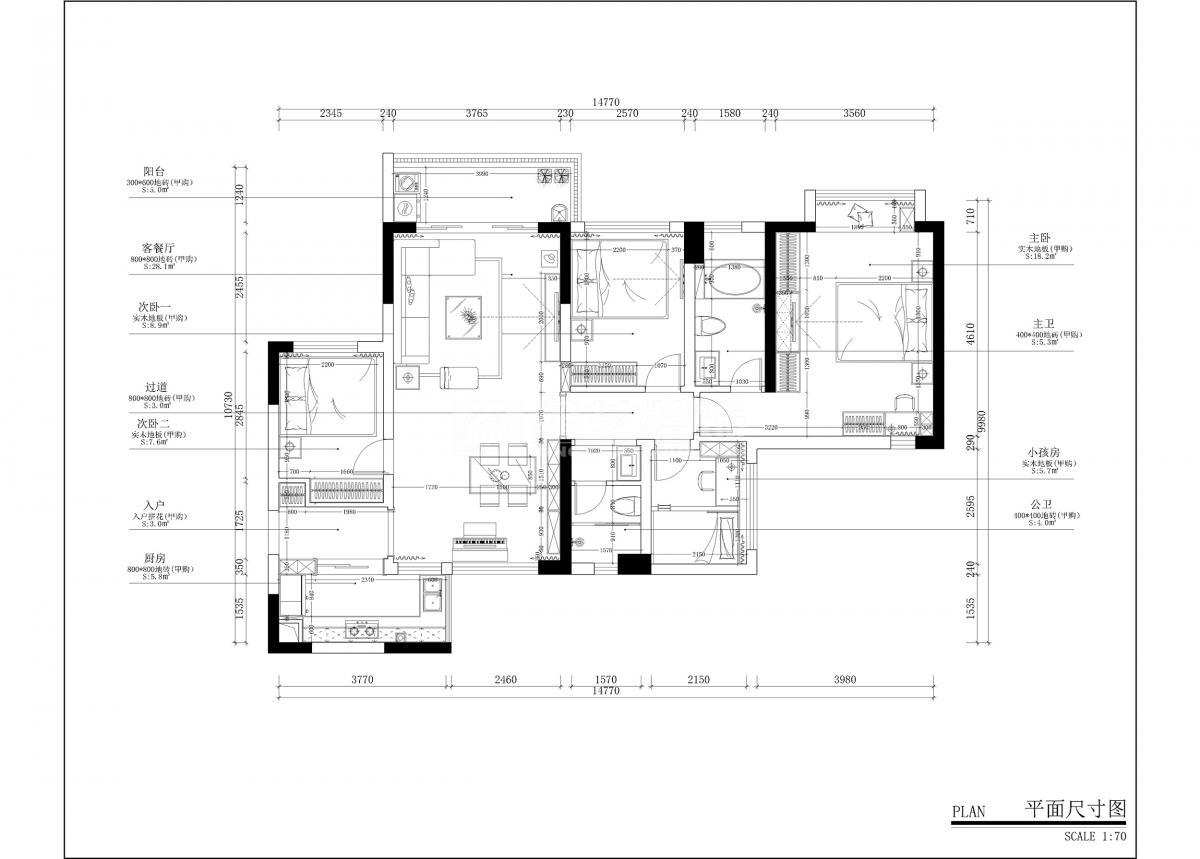
客戶在國內知名互聯網公司做管理,對歐式風格情有獨鐘,向往溫暖舒適的居家環境,墻面采用美國鄧恩藝術涂料,地磚采用歐神諾拼花瓷磚
[展開]-
星藝設計師的其它設計案例
-
簡歐風格的其它設計案例
廣東星藝裝飾集團廣州有限公司,一起尋找好裝修!
客戶在國內知名互聯網公司做管理,對歐式風格情有獨鐘,向往溫暖舒適的居家環境,墻面采用美國鄧恩藝術涂料,地磚采用歐神諾拼花瓷磚
[展開]
(c)Copyright 2021 廣東星藝裝飾集團有限公司廣州分公司 版權所有 粵ICP備12080332號
公安部備案號 44010602004978號