廣東星藝裝飾集團廣州有限公司,一起尋找好裝修!

星藝裝飾(廣州總部)

您的當前位置:首頁>裝修案例>天河六運小區

分享到 微信

天河六運小區
天河六運小區
天河六運小區
天河六運小區
天河六運小區
天河六運小區

方案展示

天河六運小區
天河六運小區
天河六運小區

設計師:星藝設計師

設計經驗:11年

上傳作品:1111套

天河六運小區

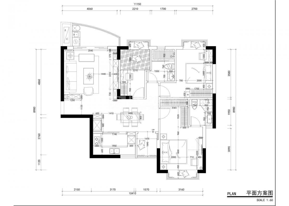
樓盤:六運小區

戶型:三室兩廳

面積:100 m2

設計風格:現代風格

工程造價:15萬

設計說明

三口之家,有老人同住,采用無主燈設計,盡可能讓空間顯得開闊大氣。兼顧收納,柜子全部做嵌墻式,用暗藏拉手,色調溫潤柔和

[展開]

裝修預約

  • 您的姓名: *
  • 聯系方式: *
  • 樓盤名稱:
  • 建筑面積: m2
  • 裝修設想:
  • 取消

快速預約裝修

  • 您的稱呼
  • 手機號碼
  • 樓盤名稱
  • 建筑面積
  •  

(c)Copyright 2021 廣東星藝裝飾集團有限公司廣州分公司 版權所有 粵ICP備12080332號 公安部備案號 44010602004978號