廣東星藝裝飾集團廣州有限公司,一起尋找好裝修!

星藝裝飾(廣州總部)

您的當前位置:首頁>裝修案例>天光

分享到 微信

天光
天光
天光
天光
天光
天光
天光
天光
天光
天光
天光
天光
天光
天光
天光
天光
天光
天光

方案展示

天光
天光
天光
天光
天光
天光
天光
天光
天光

設計師:星藝設計師

設計經驗:11年

上傳作品:1111套

天光

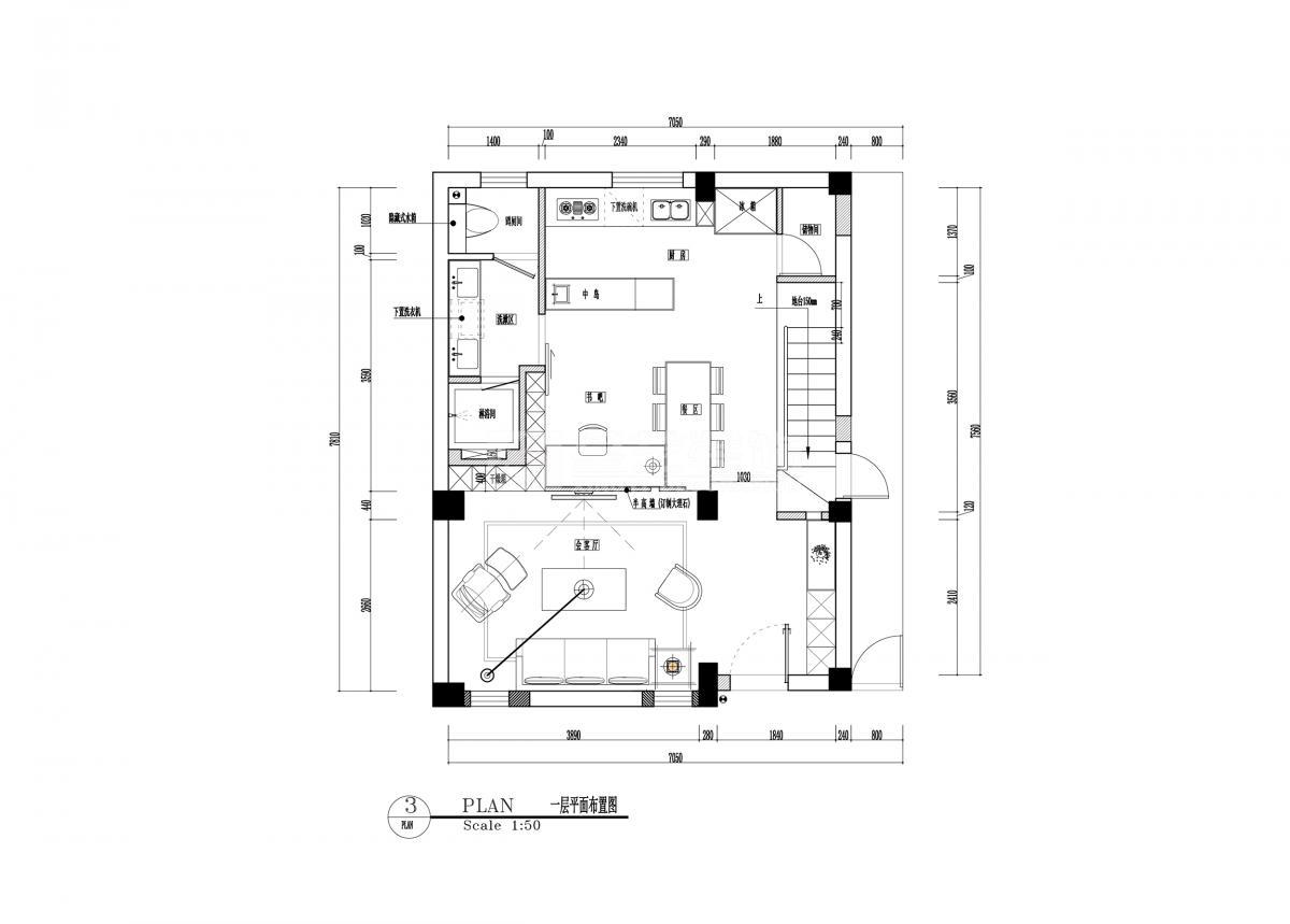
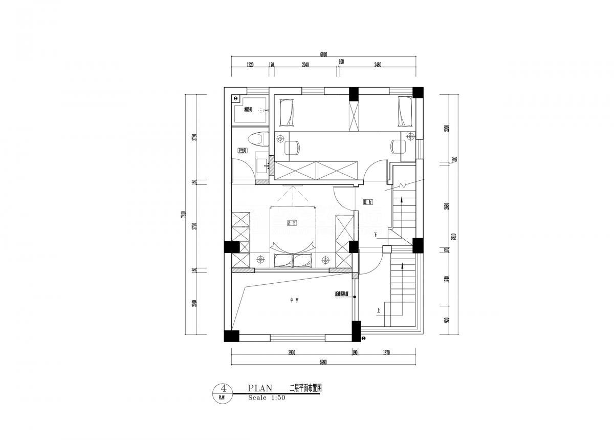
樓盤:匯景新城

戶型:三室兩廳

面積:180 m2

設計風格:北歐風格

工程造價:24萬

設計說明

本案是一個4口之家,有兩個小朋友,對于他們,我覺得構成家的最重要元素應該是陽光,放松,互動與儲物, 給男主人一個放松冥想,充電的空間 給女主人一個功能,儲物,舒適的家 給小朋友一個學習,睡眠,游戲的樂園。 通過對原有戶型的分析,我把一層的所有間隔墻體都打掉,將餐廚庭一體化增加空間的對流與采光,也同時增加了不同功能區的聯系與互動。 把動區放在一樓,二樓主要作為睡臥區,中空位的保留,樓梯造景與二樓的落地窗,讓兩層空間有個很好的鏈接 材質上采用灰色的水磨石,橡木飾面,以白色和木色為主色調打造一個放松,慵懶舒適的家

[展開]

裝修預約

  • 您的姓名: *
  • 聯系方式: *
  • 樓盤名稱:
  • 建筑面積: m2
  • 裝修設想:
  • 取消

快速預約裝修

  • 您的稱呼
  • 手機號碼
  • 樓盤名稱
  • 建筑面積
  •  

(c)Copyright 2021 廣東星藝裝飾集團有限公司廣州分公司 版權所有 粵ICP備12080332號 公安部備案號 44010602004978號