廣東星藝裝飾集團廣州有限公司,一起尋找好裝修!

星藝裝飾(廣州總部)

您的當前位置:首頁>裝修案例>天河區力迅上筑西區D座502房

分享到 微信

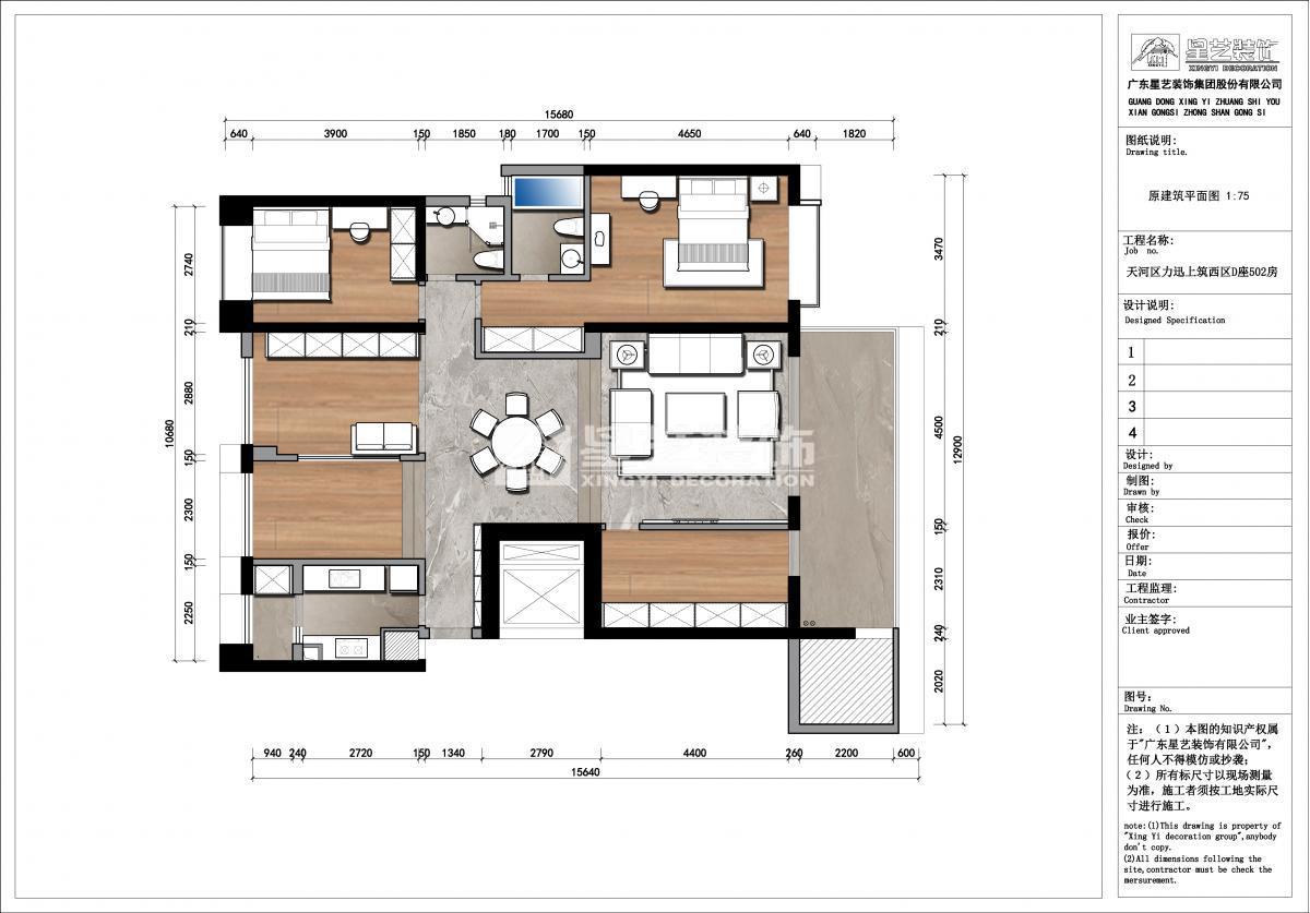
天河區力迅上筑西區D座502房
天河區力迅上筑西區D座502房
天河區力迅上筑西區D座502房
天河區力迅上筑西區D座502房
天河區力迅上筑西區D座502房
天河區力迅上筑西區D座502房
天河區力迅上筑西區D座502房
天河區力迅上筑西區D座502房

方案展示

天河區力迅上筑西區D座502房
天河區力迅上筑西區D座502房
天河區力迅上筑西區D座502房
天河區力迅上筑西區D座502房

設計師:星藝設計師

設計經驗:11年

上傳作品:1111套

天河區力迅上筑西區D座502房

樓盤:力迅上筑

戶型:四室兩廳

面積:150 m2

設計風格:美式風格

工程造價:21萬

設計說明

本案是三口之家,男主人是在國家單位工作,女主是負責家庭家務,女兒是自己創業。

[展開]

裝修預約

  • 您的姓名: *
  • 聯系方式: *
  • 樓盤名稱:
  • 建筑面積: m2
  • 裝修設想:
  • 取消

快速預約裝修

  • 您的稱呼
  • 手機號碼
  • 樓盤名稱
  • 建筑面積
  •  

(c)Copyright 2021 廣東星藝裝飾集團有限公司廣州分公司 版權所有 粵ICP備12080332號 公安部備案號 44010602004978號