廣東星藝裝飾集團廣州有限公司,一起尋找好裝修!

星藝裝飾(廣州總部)

您的當前位置:首頁>裝修案例>珠光新城御景

分享到 微信

珠光新城御景
珠光新城御景
珠光新城御景
珠光新城御景
珠光新城御景
珠光新城御景
珠光新城御景
珠光新城御景
珠光新城御景
珠光新城御景
珠光新城御景
珠光新城御景

方案展示

珠光新城御景
珠光新城御景
珠光新城御景
珠光新城御景
珠光新城御景
珠光新城御景

設計師:凌美強

設計經驗:18年

上傳作品:10套

珠光新城御景

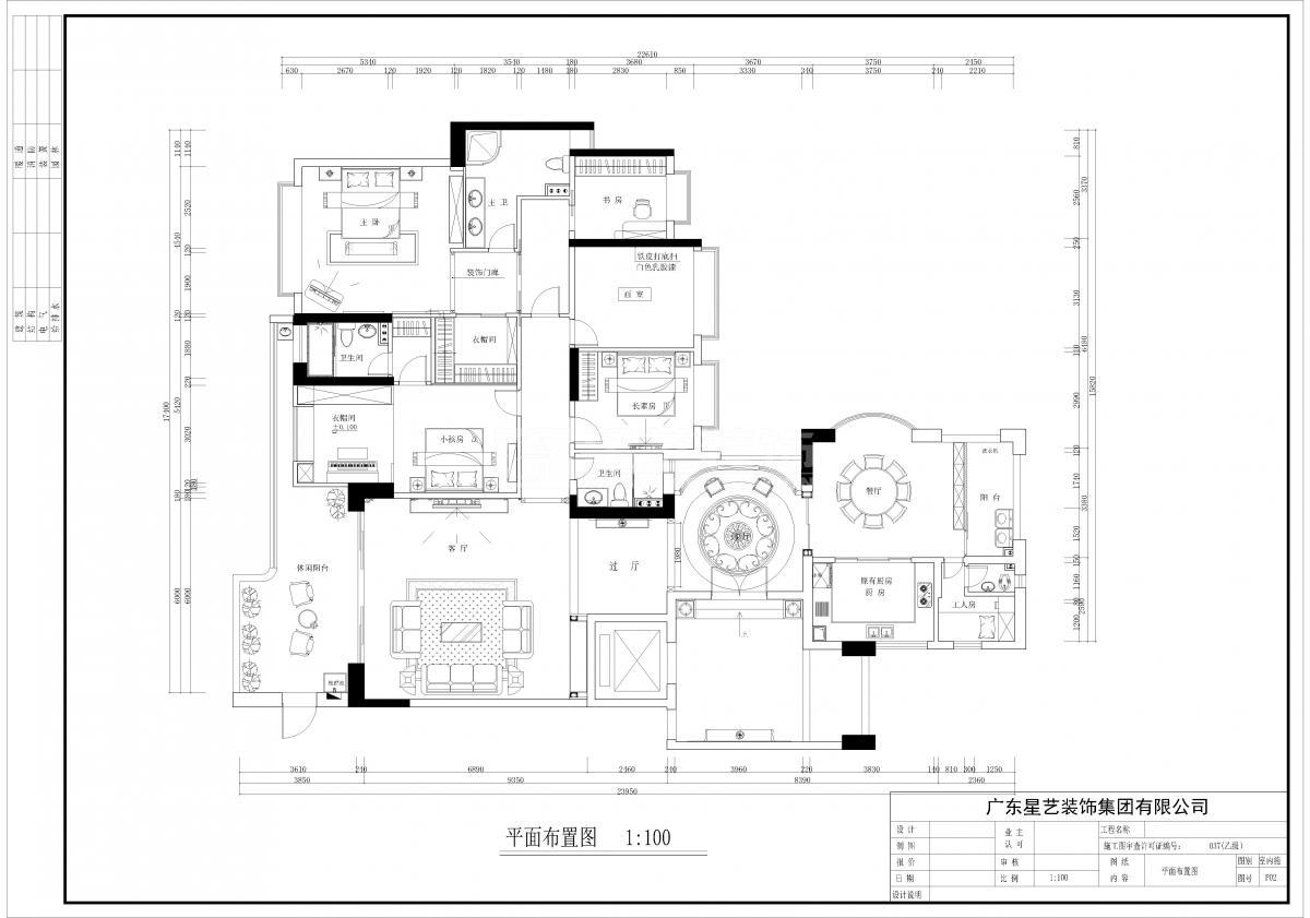
樓盤:珠光新城御景

戶型:五室兩廳

面積:299 m2

設計風格:歐式風格

工程造價:60萬

設計說明

該案例位于CBD珠江新城。業主是上市企業老總,有一女兒(在讀高中),業主對空間有自己獨特的想法。 結合業主要求:該案例將潮州木雕,茶鏡,藝術漆,透光石,軟包,大理石等材質,將不同材質完美的結合,呈現最獨特的視覺效果。通過融入現代生活元素,使得整個空間呈現出不僅豪華大氣,而且舒適,愜意與浪漫。通過完美的典線,精益求精的細節處理,帶給家人舒適的體驗與觸感。全新詮釋了“家”的涵義!

[展開]

裝修預約

  • 您的姓名: *
  • 聯系方式: *
  • 樓盤名稱:
  • 建筑面積: m2
  • 裝修設想:
  • 取消

快速預約裝修

  • 您的稱呼
  • 手機號碼
  • 樓盤名稱
  • 建筑面積
  •  

(c)Copyright 2021 廣東星藝裝飾集團有限公司廣州分公司 版權所有 粵ICP備12080332號 公安部備案號 44010602004978號