廣東星藝裝飾集團廣州有限公司,一起尋找好裝修!
您的當前位置:首頁>裝修案例>珠江帝景-優雅的空中行宮
分享到 微信
設計經驗:11年
上傳作品:1111套
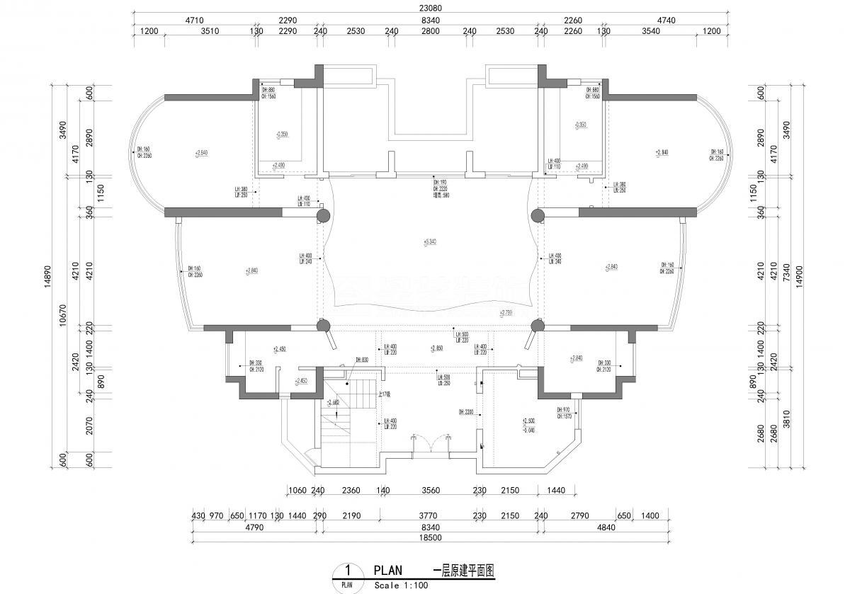
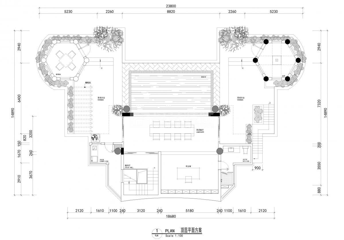
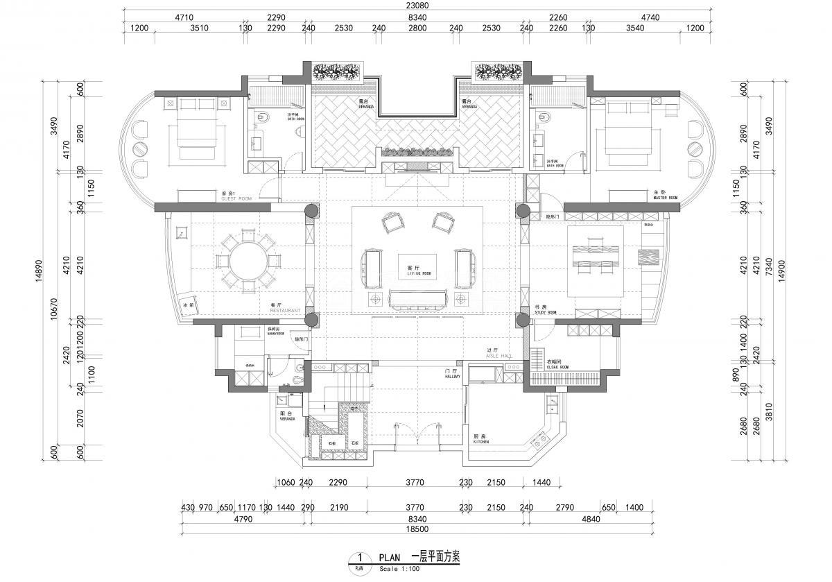
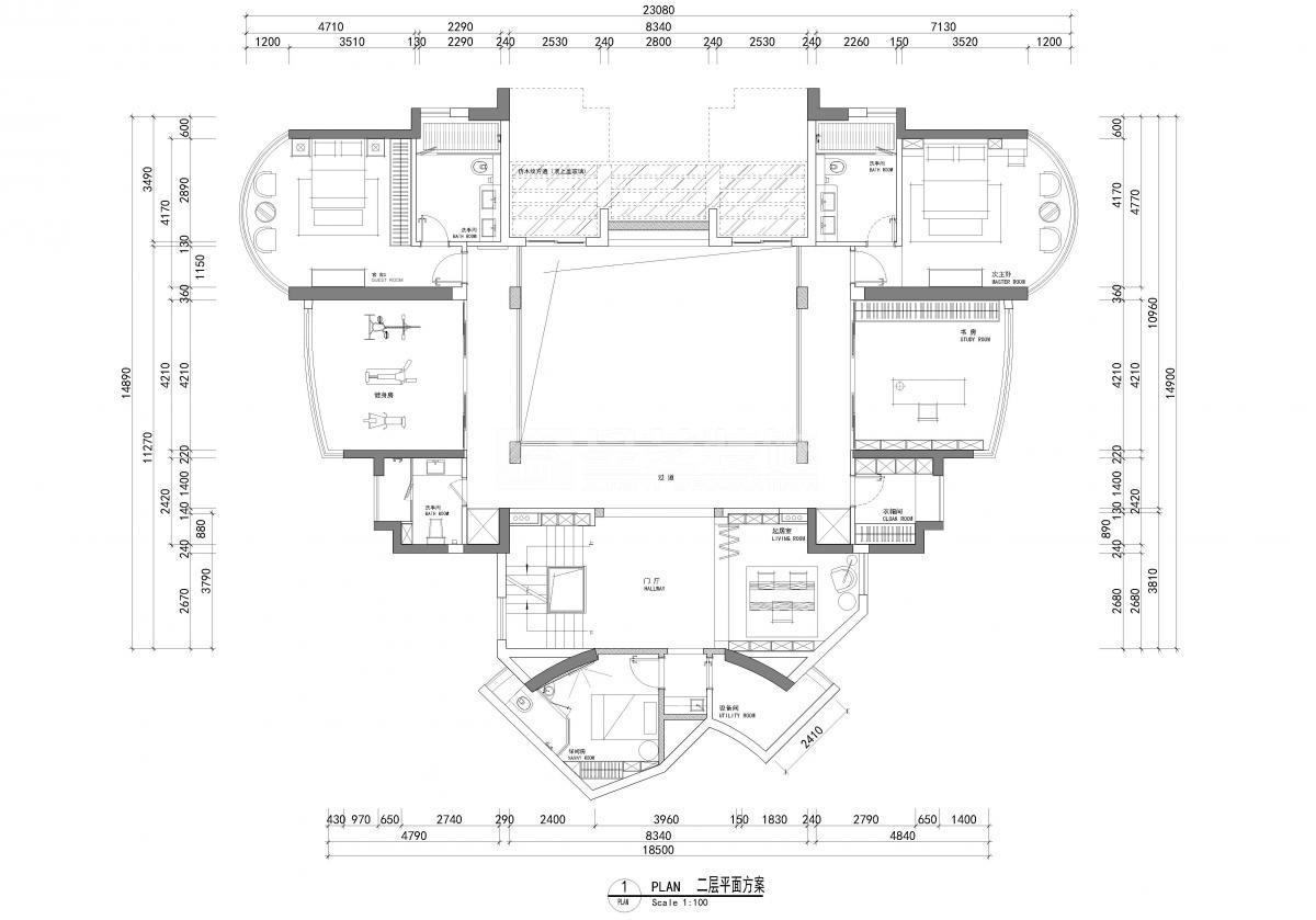
樓盤:珠江帝景
戶型:復式
面積:668 m2
設計風格:新中式風格
工程造價:180萬
{優雅的空中行宮} 由于珠江帝景有著兩岸優越的地理環境又立于頂層的多層復式大宅再融入有深度的中式文化元素,從而延伸出優雅的空中行宮 的設計主題。在本案的空間布局上講究方正、對稱的布局形式,講究整體的布局和風水格調高雅造型樸素優美,色彩濃厚而成熟。 家俱分兩種一樓用的是傳統的家具,二樓用現代簡潔再輔以字畫、盆景,陶瓷、古玩、屏風等裝飾品,追求的是一種修身、齊家的 生活境界在整體的色彩選擇上以莊重的灰色和木色為主,體現中式文化深沉、厚重的底蘊。
售前咨詢
裝修熱線
預約量房
回到頂部
24小時全國服務熱線
(c)Copyright 2021 廣東星藝裝飾集團有限公司廣州分公司 版權所有 粵ICP備12080332號 公安部備案號 44010602004978號